ContentTypeAlias: blogPost - TemplateAlias: BlogPost
Blogpost

Bygge på, bygge til?

Vi bestemmer oss for å bygge på. Men hvordan? Brudd eller tilpasning? Stort eller lite?

layout2colsNormal
rteBlock

Som du ser av tegningen var kjøkkenet opprinnelig ikke stort. Kanskje var det praktisk, men forutsatte at maten ble spist et annet sted enn der. Men i dag? Noe av det hyggeligste å gjøre med venner er jo å tilbringe tid sammen ved og rundt et bord, for eksempel i et spisekjøkken. Stemningen er lun og maten blir til i et fellesskap. Det ville Morten Nordstad gjerne ha. Da vi også fastslo at lettveggen som skilte kjøkkenet fra kammerset viste seg å være fra 1950-tallet, var veien kort til å beslutte den fjernet. Det ville gi et lyst rom med vinduer i tre himmelretninger. Skulle vi derimot presset inn et bad og toalett i det samme kammerset, ville vi frata oss selv denne muligheten. Dessuten, et hus med blindveier oppleves helt annerledes enn et hus der du kan bevege deg rundt mellom rommene. Skulle prisen for litt nødvendig komfort være å ofre et av husets fineste værelser til et bad? Vi slo det fra oss. Ett alternativ gjensto: å bygge på. Men hvordan?

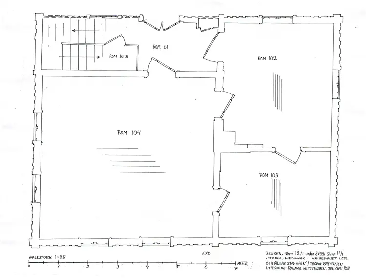
imageNoCropBlock
Bekken-plan1etg.jpg

Plantegning for første etasje: Da vi startet bestod Bekken av et stort stuerom, et lite kjøkken og et kammers. Det viste seg at lettveggen som skiller kammerset fra kjøkkenet var av nyere dato, men hadde erstattet en eldre vegg litt lengre syd. Vi har valgt å fjerne lettveggen for å få plass til et spisekjøkkenet med lysinnfall fra tre kanter. Døren til badet blir fra østveggen på rom 103. Det blir et kjøkken med fire dører og tre vinduer i rommet. Uproblematisk?  

rteBlock

Vi som går kjøkkenveien

På Hedemarken, som så mange andre steder, hadde våningshus ofte flere innganger. En hoveddør på langveggen ut mot gårdsplass og tun, samt kjøkkenveien som ofte ble plassert på endeveggen med direkte adgang til kjøkkenet. En slik, større inngang gjorde at folk slapp å dra med seg ting gjennom hele huset. Kjøkkendøren betød en kortere vei for dagens mange gjøremål inne, ikke minst den evinnelige vann- og vedbæringen som aldri tok slutt.

rteBlock

En skut

Ofte kunne det bare være en dør i veggen med trappehelle utenfor. Men også noe mer. «En skut», heter det på Wikipedia, «er et en-etasjes, som oftest uisolert, tilbygg på jærhus som regel også uten vindu. En skut på et hus ligger i forlengelse av huset, altså på kortveggen. På Jæren er det ikke uvanlig med skuter på begge kortveggene, men det er særlig den som vender mot nord som er viktig, for den isolerer boligdelen ved at den tar godt av for nordavinden.» Men vi hadde skuter på Hedemarken også. Tilbygg som vi kaller «skut». «Hekte på en skut», sier vi, og de fleste skjønner at det handler om et slags lukket bislag med pulttak. En «gang» kan vi også finne på å kalle et slikt tilbygg.

imageNoCropBlock
Skut.jpg

Det foreslåtte tilbygget, skuten, tegnet av bygningsantikvar Ragnar Kristensen. Det finnes ingen utgang til hagen fra våningshuset i dag. I tillegg til baderom fant vi derfor også plass til en liten gang med utgangsdør mot syd. 

rteBlock

Bare én dør

Bekken har bare hovedinngangen ut mot tunet, men fra svalen finnes en dør direkte inn på kjøkkenet. Det er nesten jevngodt med en egen kjøkkeninngang. Bislaget på endeveggen som før i tiden kunne romme både et spiskammers, en yttergang og en kjøkkeninngang, er et karakteristisk trekk ved byggeskikken som dukket opp i siste halvdel av 1800-tallet. Selv om bygningene var eldre, ble slike tilbygg ofte utført i sveitserstil som på Hedmarken. 

imageNoCropBlock
DSC_0998.JPG

Bekken har bare hovedinngang ut mot tunet. 

rteBlock

Brudd eller tilpasning?

Men var ikke veien lenger til en løsning enn dette? Å joda. Vi vurderte også om vi skulle bryte helt, vise vår tid uten beskjedenhet og skam. Engasjere en arkitekt til å tegne et moderne tilbygg som skulle romme alle fasiliteter. Men vi gjorde det ikke. Bekken har en enkel fasade, det har sin egen ro. Vi kom frem til at et tilbygg måtte underordne seg den eksisterende bygningen, at det skulle være lavmælt. Det var ingen selvfølge at dette skulle bli konklusjonen, for fristelsen til å sette prikken over i-en kan være stor. Men i dette tilfellet ga lokal tradisjon oss den løsningen vi trengte.

rteBlock

Hva skal et bad være?

Hva var det vi trengte? Vel, vi satte opp en liste med krav. Badet skulle være utstyrt med dusj, håndvask, vaskemaskin og klosett. En varmtvannsbereder ville også trenge plass. Dessuten skulle det være litt romslig og med muligheter for å lufte, samt lyst og hyggelig. Det betød at badet måtte ha et vindu. Varmekabler? Ja takk. Fliser? Ja, i alle fall på gulvet. På veggene panel med beskyttende glass der det vil bli vannsøl. Dusjkabinett? Vi tviler, men avviser det ikke helt. Det er det tryggeste og rimeligste, men er det fint? Hm, vi får se. For å skåne det gamle huset mest mulig for nye inngrep skulle vann og avløp til kjøkken og bad samordnes og i størst mulig gradkonsentreres i det nye tilbygget. Men det gir føringer for kjøkkeninnredningen på den andre siden av veggen.

factsBoxBlock
sjur harby portrett.JPG
Sjur Harby

Sjur Harby er utdannet magister i nordisk arkeologi og er grunnlegger av dagens Disen kolonial. Han har arbeidet med kulturarv ved en rekke institusjoner som Riksantikvaren, Hedmark fylkeskommune, tidligere Norsk institutt for jord- og skogkartlegging (NIJOS) m.m. Han driver rådgivning til eiere av eldre bygningsmasse og kulturhistoriske anlegg, utfører tilstand- og tiltaksplaner samt skriver forretningskonsepter for kommersiell bruk av eldre eiendommer.

layout2cols6
mediaBlock
DSC_0396.JPG
mediaBlock
DSC_0403.JPG
layout2colsNormal
rteBlock

Høyde og bredde

Proporsjoner og materialvalg er viktig. Det må virke harmonisk. Vi ringte etter bygningsantikvar Ragnar Kristensen i Larvik. Han har tegnet et liknende bislag til kjøkkeninngangen på Yttersø gård, som han selv eier. Vi likte det umiddelbart da vi så bildene han sendte. Gode proporsjoner og fin takvinkel. For Bekken fantes det imidlertid ingen tegninger. Derfor måtte vi starte med det helt grunnleggende, nemlig å måle opp den eksisterende bygningen. Kristensen tok turen fra Larvik, og arbeidet var gjort i løpet av et par sure høstdager i 2018. Jeg holdt målbåndet, Ragnar Kristensen leste av mål og noterte. Deretter ble huset med alle dets skjevheter tegnet ut, fasade for fasade og i plan.

rteBlock

Tegningen

Med Nordstads ønsker foran seg ble det tegnet et forslag til bad. Tilbygget rommer en liten gang, et bad med toalett og legger opp til at vi åpner for en dør fra det som tidligere var et kammers. Mot  syd blir det utgang til hagen. Vi bruker gamle dører av typer som også ellers forekommer eller kunne ha forekommet i huset. Fylkeskommunen syntes vi hadde spandert en litt for fin ytterdør. Bekken er registrert i Sefrak og byggeplanene har derfor vært til uttalelse hos dem i to omganger. Først ba vi på egen hånd om en forhåndsvurdering. Deretter ba kommunen om en uttalelse da søknaden skulle behandles. Da var det blitt sommeren 2019. Vi fant en enklere dør hos Tradisjon Tro i Snertingdal, men fremdeles manglet det noe, sa kommunen: Sanitærabonnement. Selvfølgelig. Med andre ord en ny utsettelse.

imageNoCropBlock
Bekken-tilbygg-utkast-altI. fasade nord.jpg
rteBlock

Endelig

Det skal en sertifisert rørlegger til for å søke om dette. Mens snekker Tor Arne Bekkevold ble engasjert til å sette opp selve tilbygget, var det rørlegger Arve Hanestad som besørget søknaden og etter hvert rørleggerarbeidet og Løten Bygg og Bad som tar arbeidet med membran og fliser.

imageNoCropBlock
DSC_0500.JPG
imageNoCropBlock
DSC_0503.JPG
rteBlock

Erfaringen

Til alle dere som skal bygge: Sørg for å ha alle håndverkerne klare før prosjektet starter og la dem koordinere seg selv. Du har uansett mer enn nok å holde tak i. Og selv når du tror at du har tenkt på alt, dukker spørsmålene opp. Så også på Bekken. Men det kommer vi tilbake til.

Ut på jordet

Siden vi er på bygda, måtte vi grave et godt stykke nedover jordet for å koble oss på vann- og avløpsnettet. Vi grov både byggegrunn og grøft i samme slengen. Det var blitt senhøsten 2019 innen vi kunne sette grabben i jorda, og snøen varslet sitt komme over Hedemarkens brede bygder.

imageNoCropBlock
DSC_0400.JPG

Sanitærabonnement: Vi hadde ikke tenkt på at byggeprosjektet trengte egen søknad for tilknytning til vann og kloakk til kommunen. Vi var heldige og kunne knytte oss til ledningsnettet som går over jordet. 

layout2colsNormal
rteBlock

Neste artikkel: Bygget reiser seg